MATTHIAS ARAUCO         OBJECT         INFO
PROJECT INFO︎︎︎

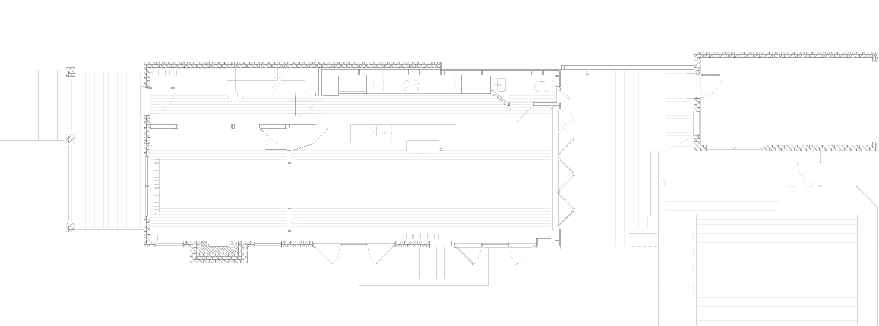
Home Operations
Washington, DC
KUBE architecture
Completed 2018

This renovation/addition to a double-detached home is conceived through a series of operations— the exercise of repurposing, relocating, and refinishing seeks to re-contextualize existing elements throughout the new space. The result of these “operations” creates a quality of objecthood as traditional motifs become abstracted through color or abut new material, thereby producing a collection of moments where new and old interact throughout the house.
























©2022 MATTHIAS ARAUCO